Completed
Offers over £500,000

2 bed semi-detached bungalow for sale in Seaforth Gardens, Epsom, KT19 (ref: 1113625)

Shortlist

Key features

  • Easy access to local amenities
  • Moments from Stoneleigh train station
  • Modern fully fitted 4 piece bathroom suite
  • Driveway with off street parking
  • Bonus loft room
  • Potential to extend (STPP)
  • Large garden
  • Two bedrooms
  • Situated in one of Stoneleigh's most sought-after areas
  • Chain free

Video

This charming semi-detached bungalow is ideally located in the heart of Stoneleigh, a highly sought-after residential area renowned for its strong community feel and excellent transport links. The property has lot's of potential for extension subject to planning permission.

The property is within easy reach of several well-regarded infant and junior schools, making it an ideal choice for families. For outdoor enthusiasts, the historic Nonsuch Park lies along the south-east boundary, providing beautiful green space for walking, recreation, and leisure.

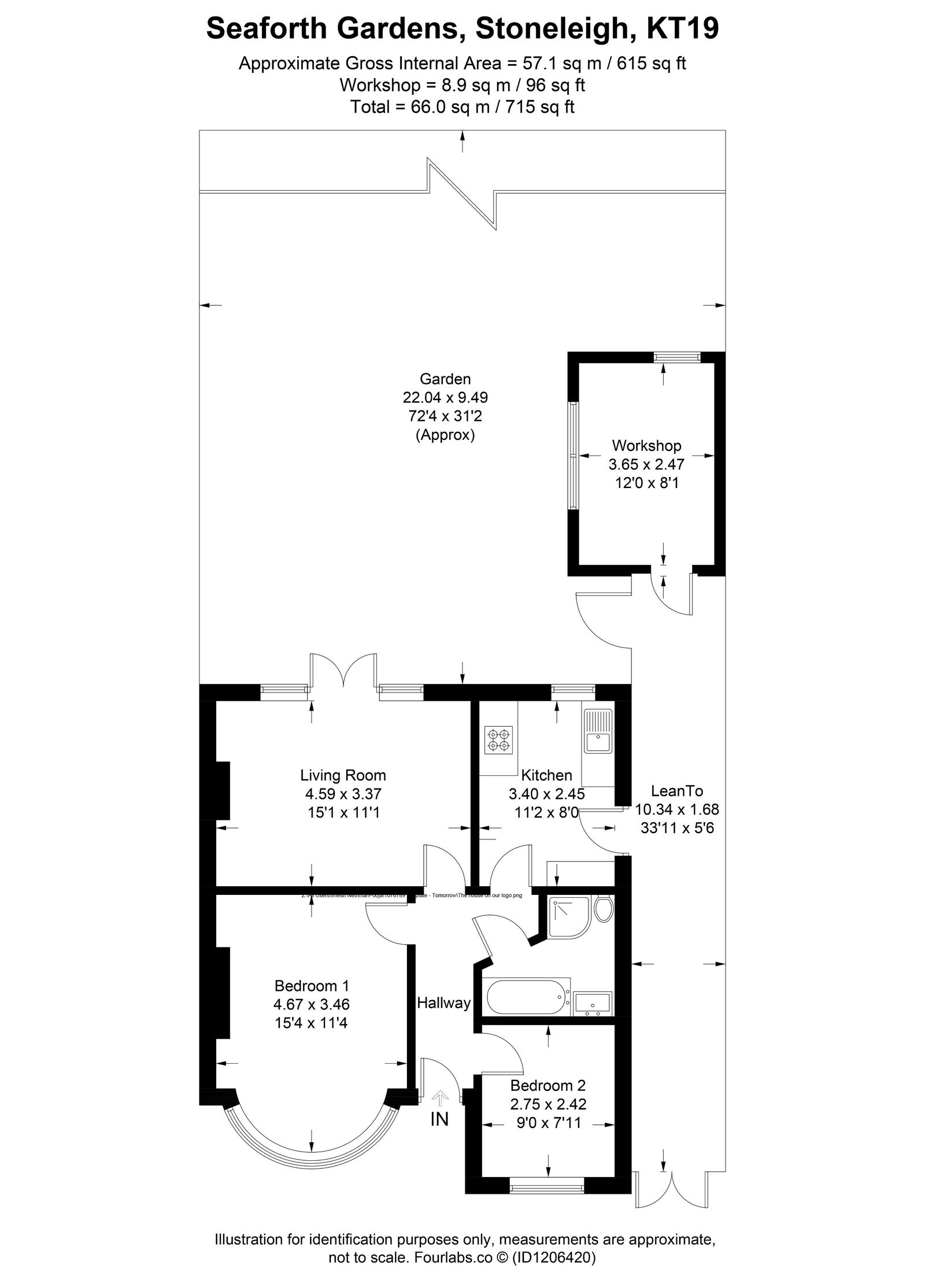
Accommodation includes a welcoming entrance hallway, two bedrooms, modern bathroom, a spacious living and dining room, and a dual aspect kitchen. A bonus loft room offers additional versatile space, potentially for a home office or hobby room.

Externally, the property features a large rear garden, a workshop/utility area, and a storage shed. To the front, a private driveway provides off-street parking for multiple vehicles.

At the centre of Stoneleigh is a vibrant Broadway lined with a variety of shops, cafés, and restaurants, as well as a mainline railway station offering services to London Waterloo every twenty minutes.

Both the M25 and A3 are easily accessible, offering convenient routes into central London as well as to Heathrow and Gatwick international airports.


Download brochure

Stamp duty due

Based on a sale price of £500,000 the total amount of stamp duty payable will be:

*

Last updated: The calculator has been updated to reflect changes in stamp duty following the Autumn Budget on 30th October 2024 for April 1st 2025 onwards.

* This value is based on the standard rate and not applicable to first-time buyers or buy-to-let / second home buyers.

Further details

  • Status: Completed
  • Size: 603 sq ft (56 .02 sq m)
  • Council tax band: D
  • Tenure: Freehold
  • Parking spaces: Driveway
  • Outside spaces: Private Garden
  • Reference: 1113625

Location